Dom na sprzedaż Juchnowiec Kościelny, Czerewki

2 pokoje
70.00 m²
2 985,71 zł/m2
LHH-DS-10530
Oblicz ratę kredytu

209 000 zł

Dom na sprzedaż
Oferta na wyłączność

Szczegóły oferty

Symbol oferty LHH-DS-10530
Powierzchnia 70,00 m²
Powierzchnia działki [m2] 3 020 m²
Liczba pokoi 2
Liczba sypialni 2
Rodzaj domu wolnostojący
Technologia budowlana drewniana
Standard
Wymiary działki 30x105 m
Garaż brak
Zagosp. działki zagospodarowana
Ukształtowanie działki płaska
Kształt działki nieregularny
Pokrycie dachu blachodachówka
Stan budynku do remontu
Ogrodzenie działki brak
Rok budowy 1950
Gaz brak
Woda brak
Dojazd droga gruntowa
Otoczenie tereny rekreacyjne
Ogrzewanie piec kaflowy
Położenie na wsi
Prąd jest
Kanalizacja brak
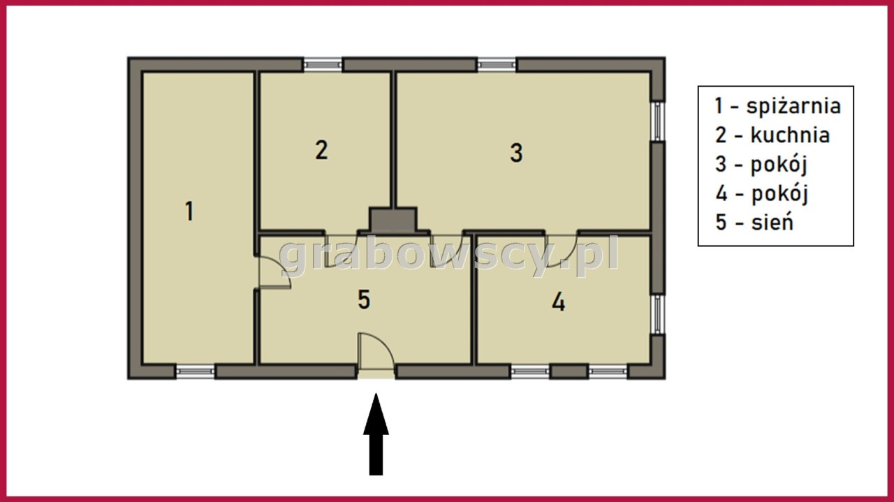
Pomieszczenia
Paweł Sołomianko

Paweł Sołomianko

Właściciel - POŚREDNIK NR LICENCJI 25616
Nr licencji: 25616

Napisz wiadomość 35 Ofert

Opis nieruchomości

Zapraszamy do zapoznania się z ofertą sprzedaży domu znajdującego się w Czerewkach, gm. Juchnowiec Kościelny.
Spokojne miejsce położone przy granicy ze wsią Wojszki oddalone ok. 30km od Białegostoku i ok. 25km od Bielska Podlaskiego.

Działka:
Powierzchnia 3020m2 o wymiarach 30m x 105m

- dojazd drogą asfaltową, ostatnie 150m drogą gruntową.
- wodociąg w drodze asfaltowej - 150m, prąd doprowadzony do domu.
- teren płaski, dobrze nasłoneczniony.
- na działce znajduje się studnia.
- przystanek autobusu miejskiego (linia 202) - 1,5km.

Dom:
Powierzchnia ok. 70m2 

- budynek (parter + strych, bez podpiwniczenia) - wykonany w drewnianej technologii.
- 2 pokoje, kuchnia, sień, pom. gospodarcze,
- dach wyłożony blachodachówką.
- drewniana stolarka okienna i drzwiowa.
- ogrzewanie - piec kaflowy.

Dom w stanie do remontu, wymaga nakładów w celu doprowadzenia go do pełnej użyteczności i radości z korzystania. Dogodne położenie połączone z sielskim klimatem zachęca do czerpania tego co najlepsze z podlaskiej wsi. Działka porośnięta niekiedy stuletnimi drzewami sprawia, że miejsce nabiera jeszcze większego charakteru. Sąsiedztwo zagajników w okolicy zwiększa wszechobecny kontakt z naturą. 
Świetne miejsce dla osób pragnących oderwać się od zgiełku miasta, zaczerpnąć oddechu i przeżywać życie w stylu "slow life".

Bliskie sąsiedztwo drogi powiatowej sprawia, że przemieszczanie się między miastem a domem nie stanowi wyzwania. Oferta godna uwagi.

W sprzedaży dostępne są również działki niezabudowane o powierzchniach od ok. 3000m2 do ok. 3800m2 w cenie 50zł/m2

 

Zapraszamy na prezentację!
* Oferta objęta klauzulą wyłączności *

 

Kalkulatory

Kalkulator kredytowy

Wysokość raty

PLN
%

Kalkulator kosztów

Podatek od czynności cywilno-prawnych

Taksa notarialna
(opłata notarialna)

Wniosek o wpis do KW

VAT od prowizji
agencji nieruchomości

VAT od taksy notarialnej
(opłaty notarialnej)

Prowizja agencji nieruchomości

Wypisy aktu notarialnego

Razem

Uwaga: mogą wystąpić dodatkowe opłaty za założenie księgi wieczystej oraz ustanowienie hipoteki.

PLN
PLN
PLN
PLN
PLN
PLN
%
PLN

Właściciel - POŚREDNIK NR LICENCJI 25616

Proszę wprowadzić poprawne imię i nazwisko
Proszę wprowadzić poprawny numer telefonu
Proszę wprowadzić poprawny adres e-mail
Proszę zaznaczyć wymagane zgody
Rozwiąż równanie:
18 5
Niepoprawny wynik